Al-Mazraa Al-Shahbandar Street Syria
info@ufuk-arc.com
HOME
ABOUT US
PORTFOLIO
BLOG
CONTACTS
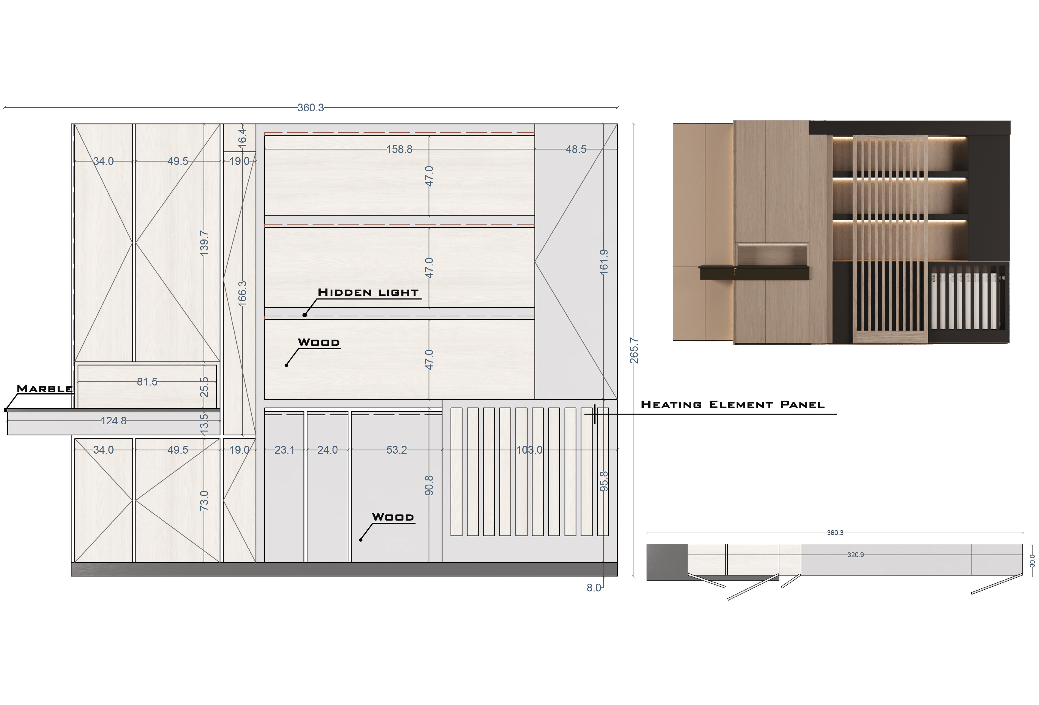
[ PROJECT ]
Shop Drawing Details
Home
/
Portfolio
/
Shop Drawing Details
Project Name
Shop Drawing Details
Images
17 Photos
← BACK TO PORTFOLIO